
ASAP PROJECTS
CAD-BIM & AI CONVERGENCE: RELIABILITY. BENEFIT. INNOVATION.
By Markus Hormaza
SISTEMAS CONTRAINCENDIOS
Mediante el spin-off MORPHORISER, se modelan sistemas de detección, alarma, preacción y extinción de incendios, incluyendo redes de rociadores, sistemas vortex y de agua nebulizada. Se desarrolla RedLine, conformación de AsBuilt normativo y simulaciones de cobertura para agua y espuma de alta densidad.
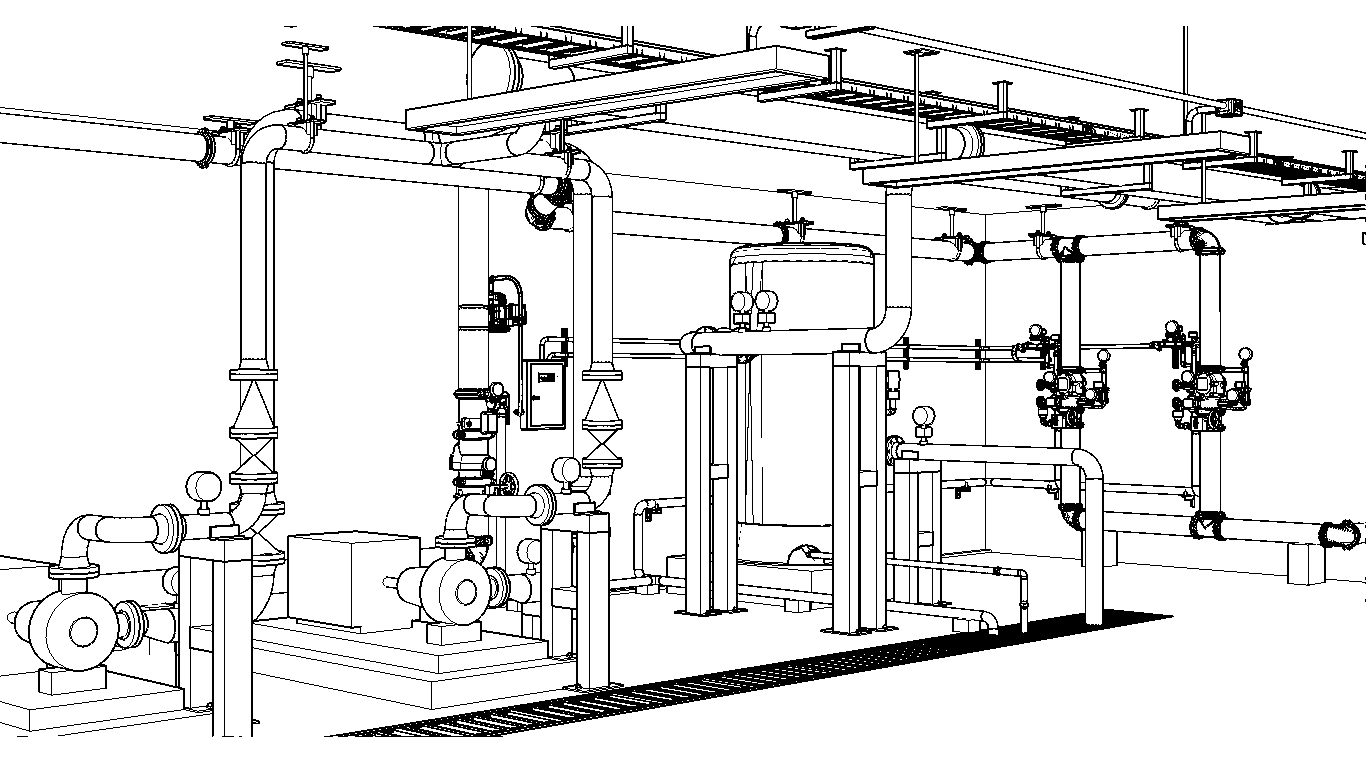
INFRAESTRUCTURA PARA SISTEMA DE PREACCIÓN
![Infraestructura para Sistema de Preacción [GIF].gif](https://static.wixstatic.com/media/61b593_de54f3d7640e48a7ad64d62c5946ac73~mv2.gif)
| | Proyecto: Infraestructura para sistema de preacción | | Fecha: 02/03/2026 | | Elaborado por: Markus Hormaza, representante de ASAP PROJECTS © | | Objetivo: Desarrollo de diseño hidráulico modelado en CAD/BIM para preacción en escenarios de incendio, conforme a normativas NFPA aplicables a la infraestructura arquitectónica e industrial. El sistema busca garantizar eficiencia operativa y preacción inmediata ante eventos críticos | | Fase de diseño: Ingeniería de detalle | | Habilidades: Aplicación de Dibujo Técnico asistido por Computador (CAD), modelamiento BIM, diseño de tuberías y sistemas de preacción contra incendios, implementación de standards industriales | | Descripción General: La infraestructura ha sido diseñada y modelada en entorno CAD/BIM, representando con precisión el ruteo de tuberías y la ubicación de componentes Victaulic. Se integran análisis de escenarios alineados con estándares americanos para garantizar integridad operacional, supresión efectiva y desarrollo de estrategias de reacción técnica | | Copyright: Trabajo propio. Todos los derechos reservados | | Herramientas: Autodesk, Inc. | | Normativas Aplicadas: NFPA, ASME, AIA, ASTM, NACE | | Requerimientos de Diseño: Modelado LOD 300 para garantizar precisión dimensional, compatibilidad normativa y operatividad bajo condiciones críticas. Componentes diseñados para soportar cargas estáticas y dinámicas. El sistema incluye: bombeo, almacenamiento, ruteo hidráulico, fittings y válvulas Victaulic | | Materiales: Hierro ductil, cobre, acero al carbono e inoxidable y accesorios Victaulic, resistentes a la corrosión y condiciones operativas exigentes | | Consideraciones: El proyecto integra tecnologías CAD, BIM y AI para optimizar el diseño de infraestructura a la preacción ignífuga en entornos arquitectónicos e industriales, asegurando trazabilidad técnica, eficiencia operativa y cumplimiento normativo | | Contacto: Markus Hormaza, hormazamarkus@gmail.com | | Derechos: ASAP PROJECTS © Todos los derechos reservados | |
SISTEMA DE EXTINCIÓN CON AGUA INDUSTRIAL
![[GIF] SCI - AGUA INDUSTRIAL.gif](https://static.wixstatic.com/media/61b593_4eced905dd744f1887d8d822ee701ac9~mv2.gif)
| | Proyecto: SISTEMA DE EXTINCIÓN CON AGUA INDUSTRIAL | | Fecha: 02/03/2020 | | Elaborado por: Markus Hormaza, representante de ASAP PROJECTS © | | Objetivo: Desarrollo de un sistema de agua industrial para protección contra incendios conforme a las normativas de NFPA en la industria de Oil & Gas, garantizando la máxima seguridad y eficiencia operativa. Este sistema tiene como finalidad mitigar el riesgo de incendios y asegurar la protección de los activos y el personal en la estación de filtración y almacenamiento de crudo | | Fase de diseño: Ingeniería de detalle | | Habilidades: Aplicación de Dibujo Técnico asistido por Computador (CAD), modelamiento BIM (Building Information Modeling), diseño de sistemas de protección contra incendios en la industria de Oil & Gas, implementación de standards de diseño industrial | | Descripción General: El sistema de agua contra incendios ha sido diseñado y modelado utilizando tecnología CAD/BIM, proporcionando una representación detallada de los componentes y áreas críticas, asegurando la operatividad y eficiencia del sistema. Se ha implementado la evaluación de riesgos, el análisis y planificación de escenarios de incendio tipo Jet Fires, Pool Fires y Flash Fires, alineándose con los standards internacionales (NFPA, ASME, API, ASTM, NACE) para asegurar la integridad operacional, reduciendo el impacto de incendio y facilitando el desarrollo de estrategias de reacción, control y respuesta adecuada | | Copyright: Trabajo propio. Todos los derechos reservados | | Herramienta: Sprinkler, Victaulic CAD Library, AutoCAD, AutoCAD PLANT 3D, Autodesk Revit, Inventor, Navisworks, Vectary | | Standards de Normalización: NFPA 13 (Instalación de Sistemas de Rociadores Automáticos), NFPA 20 (Instalación de Sistemas de Bombeo Contra Incendios), ASME (American Society of Mechanical Engineers), API (American Petroleum Institute), ASTM (American Society for Testing and Materials), NACE (National Association of Corrosion Engineers) | | Requerimientos de Diseño: Modelado LOD 300 para asegurar dimensiones, conexiones y materiales ajustados a las normas NFPA y ASME, garantizando la compatibilidad y operatividad del sistema bajo condiciones de operación críticas. Las tuberías y accesorios modelados se han diseñado para soportar tanto cargas estáticas como dinámicas, cumpliendo con los requisitos de resistencia y durabilidad. El sistema de protección contra incendios incluye: Sistema de Bombeo, tanque de almacenamiento de agua, tubería ranurada, accesorios y rociadores tipo Pendent marca Victaulic, monitores de agua tipo Cobra, manifold de válvulas | | Materiales: Se especifican tuberías de acero al carbono ASTM A36 y accesorios Victaulic, que garantizan la resistencia a la corrosión y las condiciones operativas del sistema. Las válvulas tipo Cobra en los monitores de agua permitirán un control preciso del flujo y la presión, mientras que los rociadores tipo Pendent de Victaulic están diseñados para cumplir con la norma NFPA 13 en cuanto a la densidad y cobertura del agua. Todo el sistema se diseñará para cumplir con las normativas de seguridad y eficiencia requeridas en la industria de Oil & Gas | | Consideraciones: Este proyecto integra tecnologías avanzadas de diseño CAD, BIM y AI para optimizar un diseño de protección contra incendios en el ámbito petroquímico | | Contacto: Markus Hormaza, hormazamarkus@gmail.com | | Derechos: ASAP PROJECTS © Todos los derechos reservados | |
SISTEMA DE EXTINCIÓN CON ESPUMA DE ALTA EXPANSIÓN
![[GIF] SCI ESPUMA.gif](https://static.wixstatic.com/media/61b593_05d340968b6c46b3b5fbb72260a5b75d~mv2.gif)
| | Proyecto: SISTEMA DE EXTINCIÓN CON ESPUMA DE ALTA EXPANSIÓN | | Fecha: 02/03/2020 | | Elaborado por: Markus Hormaza, representante de ASAP PROJECTS © | | Objetivo: Diseño de un sistema de protección contra incendios basado en espuma de alta expansión, conforme a las normativas de NFPA, para la protección de tanques de almacenamiento de hidrocarburos. Este sistema busca prevenir y controlar incendios en áreas críticas, asegurando la integridad de las instalaciones y la seguridad del personal | | Fase de diseño: Ingeniería de detalle | | Habilidades: Aplicación de Dibujo Técnico asistido por Computador (CAD), modelamiento BIM (Building Information Modeling), diseño de sistemas de protección contra incendios en la industria de Oil & Gas, implementación de standards de diseño industrial | | Descripción General: El sistema de protección contra incendios por espuma de alta expansión incluye un sistema de bombeo diseñado para proporcionar la mezcla adecuada de agua industrial y agente espumante. Se garantiza que el sistema esté en conformidad con los estándares de seguridad, brindando una respuesta eficaz ante situaciones de emergencia. Se ha implementado la evaluación de riesgos, el análisis y planificación de escenarios de incendio tipo Jet Fires, Pool Fires y Flash Fires, alineándose con los standards internacionales (NFPA, ASME, API, ASTM, NACE) para asegurar la integridad operacional, reduciendo el impacto de incendio y facilitando el desarrollo de estrategias de reacción, control y respuesta adecuada | | Copyright: Trabajo propio. Todos los derechos reservados | | Herramienta: Sprinkler, Victaulic CAD Library, AutoCAD, AutoCAD PLANT 3D, Autodesk Revit, Inventor, Navisworks, Vectary | | Standards de Normalización: NFPA 11 (Sistema de Espuma), NFPA 20 (Instalación de Sistemas de Bombeo Contra Incendios), ASME (American Society of Mechanical Engineers), API (American Petroleum Institute), ASTM (American Society for Testing and Materials), NACE (National Association of Corrosion Engineers) | | Requerimientos de Diseño: Modelado 3D LOD 300 para asegurar dimensiones, conexiones y materiales ajustados a las normas NFPA y ASME, garantizando la compatibilidad y operatividad del sistema bajo condiciones de operación críticas. El sistema ha sido diseñado para cumplir con los requisitos de flujo y presión establecidos en NFPA 11 para sistemas de espuma | | Componentes: Sistema de bombeo, agua industrial, agente espumante, Manifold de suministro, tanque de almacenamiento de agua, cámaras de espuma, monitor de espuma con válvula tipo Cobra | | Materiales: Los componentes del sistema, incluyendo las tuberías, accesorios y el monitor de espuma, se especificarán con materiales resistentes a la corrosión y a las condiciones operativas de la industria de Oil & Gas. Las tuberías utilizadas deben cumplir con el estándar ASTM A53, y se seleccionarán accesorios compatibles con los sistemas de espuma y agua | | Consideraciones: Este proyecto integra tecnologías avanzadas de diseño CAD, BIM y AI para optimizar un diseño de protección contra incendios en el ámbito petroquímico | | Contacto: Markus Hormaza, hormazamarkus@gmail.com | | Derechos: ASAP PROJECTS © Todos los derechos reservados | |
TAGS
#AutodeskInc., #BIM, #CAD, #Mechanical, #FireProtectionSystems, #ASME, #ASTM, #API, #NACE, #NFPA, #IEEE, #Oil&Gas, #Fittings, #Jack-UpBarge, #TexasFlange, #BonnetForge, #Victaulic, #ASAPPROJECTS, #PETROCADDESIGNS, #MarkusHormaza, #AI